
Odolná a moderní zeleň ve veřejném prostoru
Navrhuji veřejné prostory, které dýchají, zadržují vodu a zvyšují kvalitu života obyvatel.
Od návesních parků po krajinné biokoridory.
Náměstí, návsi
Tvorba reprezentativních a funkčních center měst a obcí.
Školní zahrady a hřiště
Bezpečné a inspirativní přírodní prostory pro děti.
Parky
Citlivé zásahy s respektem k památkové hodnotě ve spolupráci s památkáři
Krajinné prvky
Navrácení harmonie a biologické rozmanitosti do volné krajiny.
Okružní křižovaky
Estetická a bezpečná řešení s důrazem na přehlednost a nízkou údržbu.
Smíšené trvalkové výsadby
Dynamické kompozice barev a struktur, které proměňují prostor po celý rok.
Ukázka návrhů velkých prostorů
Okružní křižovatka – Vsetín
Významný kruhový objezd s logem města, navržený s ohledem na minimální nároky na údržbu a důstojnou reprezentaci města.

Původní stav

Návrh
Okružní křižovatka malé Tesco – Přerov
Kruhový objezd v blízkosti Lidové školy umění evokuje malířskou paletu, kombinuje technickou funkčnost s uměleckým přesahem a sezónní proměnlivostí. Tento projekt byl realizován pod záštitou TsmPr.

Původní stav

Návrh

Realizace
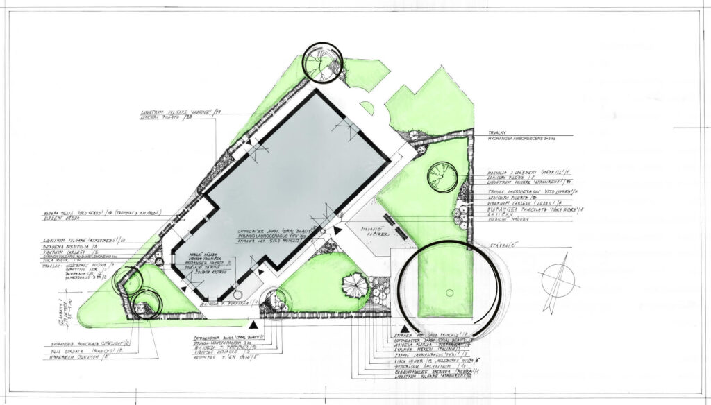
Návrh zeleně u Evangelického kostela – Hranice

Park – Vsetín 3x jinak
Hledání ideálního řešení ve veřejném prostoru.



Okružní křižovatka Žerotínovo náměstí – Přerov
Funkční řešení respektující inženýrské sítě využívá maltové povrchy pro maximálně snadnou údržbu a čistý vzhled. Promyšlená výsadba navíc zajišťuje vysokou estetiku a proměnlivé kvetení po celý rok. Tento projekt byl realizován pod záštitou TsmPr.

Původní stav

Návrh

Realizace
Hlavní hřbitov – Přerov
Koncepce výsadby na hlavním hřbitově navazuje na architekturu smuteční síně a promítá její tvarosloví do kompozice záhonů. Tento projekt byl realizován pod záštitou TsmPr.

Návrh

