Odbornost podložená praxí: Spojuji vzdělání (VOŠ zahradnická) s 20 lety zkušeností při zakládání zahrad.
Realizovatelnost: Navrhuji jen to, co lze technicky postavit, odvodnit a dlouhodobě udržet.
Komplexní přístup: Řeším zahradu jako celek – od technických výkresů až po poslední trvalku.

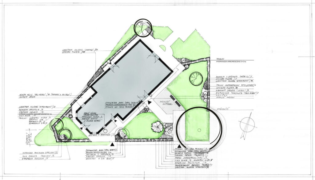
Tento návrh moderní rodinné zahrady o velké rozloze, plynule propojuje obytné prostory domu s venkovním posezením u bazénu a relaxační zónou s vířivkou. Centrální volná travnatá plocha je určena pro aktivity a v zadní části navazuje na otevřené ohniště a užitkovou zahradu se skleníkem.

Návrh této moravské zahrady klade důraz na snadnou údržbu díky plynulé travnaté ploše pro efektivní sečení, kterou doplňují bohaté trvalkové záhony u posezení pro maximální vizuální zážitek. O příjemné klima v horkých dnech se stará přirozený stín vzrostlých stromů

Tato venkovská zahrada je navržena s důrazem na klid a snadnou údržbu. Bezprostřední okolí terasy zdobí trvalkové záhony. Celý prostor s plynule tvarovaným trávníkem pro snadnou údržbu je rozvržen tak, aby přirozeně rámoval pohledy do volné krajiny a poskytoval majitelkám ničím nerušené soukromí.

Kruhový objezd v blízkosti Lidové školy umění evokuje malířskou paletu, kombinuje technickou funkčnost s uměleckým přesahem a sezónní proměnlivostí. Tento projekt byl realizován pod záštitou TsmPr.



Funkční řešení respektující inženýrské sítě využívá maltové povrchy pro maximálně snadnou údržbu a čistý vzhled. Promyšlená výsadba navíc zajišťuje vysokou estetiku a proměnlivé kvetení po celý rok. Tento projekt byl realizován pod záštitou TsmPr.



Koncepce výsadby na hlavním hřbitově navazuje na architekturu smuteční síně a promítá její tvarosloví do kompozice záhonů. Tento projekt byl realizován pod záštitou TsmPr.


Hledání ideálního řešení ve veřejném prostoru.



Významný kruhový objezd s logem města, navržený s ohledem na minimální nároky na údržbu a důstojnou reprezentaci města.


